House drawings consented and ready to build.
Full set of drawings with national consent ready to build anywhere in New Zealand.
Get notified when we’re launching.
Reprehenderit ad esse et non officia in nulla. Id proident tempor incididunt nostrud nulla et culpa.

Everything you need to start building.
In order to build a house in New Zealand, a range of consents and approvals are required, including but not limited to building consent, resource consent, and land use consent. These consents ensure that the proposed building is compliant with the Building Code, local bylaws, and other regulatory requirements.
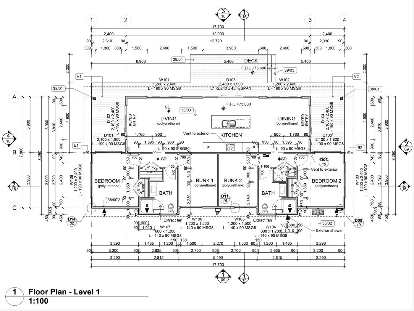
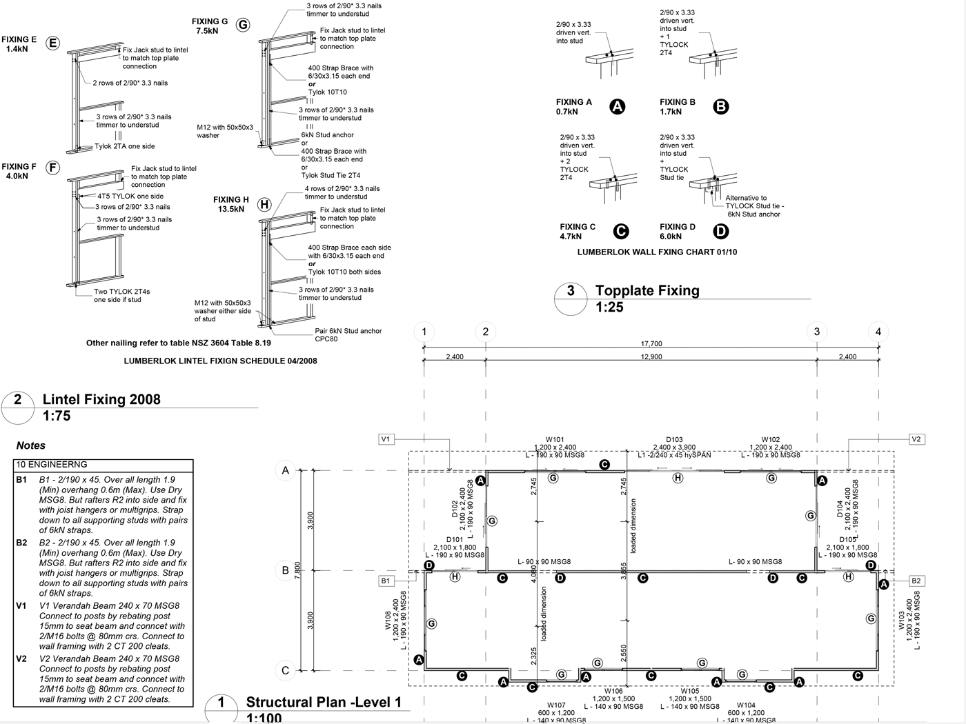
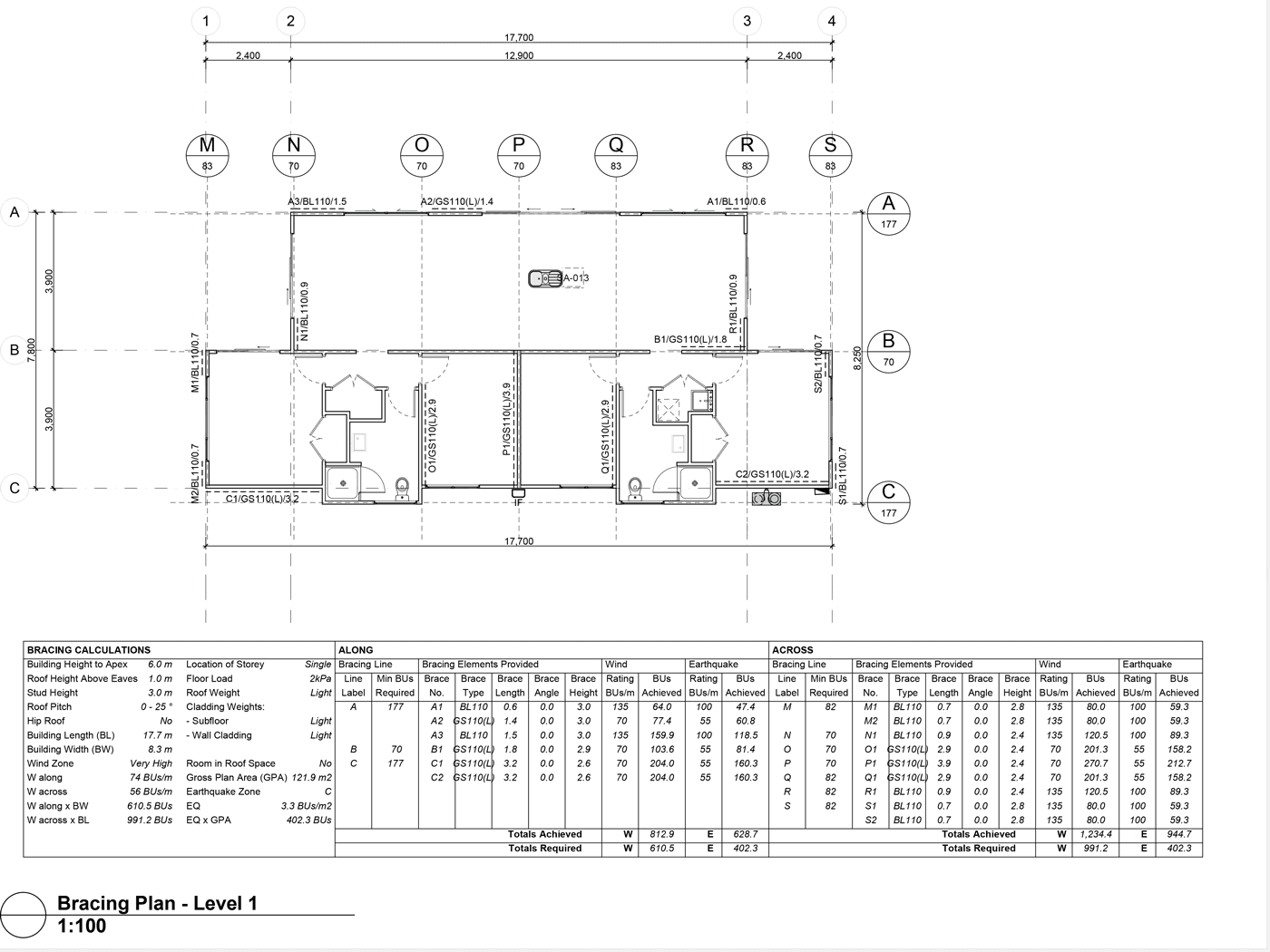
Floor plans are detailed architectural diagrams that illustrate the layout and dimensions of a building's interior spaces, and are a critical aspect of building design and construction.

Simplify everyday business tasks.
Because you’d probably be a little confused if we suggested you complicate your everyday business tasks instead.
Building Takeoff
Building takeoff is a vital aspect of any construction project management.
Building takeoff involves examining architectural and engineering plans to determine the quantities and costs of materials, labor, and equipment needed to complete a construction project.

Schedule
Comprehensive plan outlining construction stages, timelines, and resources required.
A construction schedule is a detailed plan that maps out the various activities and tasks required to complete a project within a specified timeframe.

Window & Door Schedule
A document detailing specifications for all windows and doors in a building.
A window & door schedule is a document that specifies the type, size, and location of all windows and doors in a building, as well as the materials, finishes, and other details required for each one.

Building takeoff is a vital aspect of any construction project management.
Building takeoff involves examining architectural and engineering plans to determine the quantities and costs of materials, labor, and equipment needed to complete a construction project.
Comprehensive plan outlining construction stages, timelines, and resources required.
A construction schedule is a detailed plan that maps out the various activities and tasks required to complete a project within a specified timeframe.
A document detailing specifications for all windows and doors in a building.
A window & door schedule is a document that specifies the type, size, and location of all windows and doors in a building, as well as the materials, finishes, and other details required for each one.


Loved by businesses worldwide.
Our software is so simple that people can’t help but fall in love with it. Simplicity is easy when you just skip tons of mission-critical features.
Ready2Build is so easy to use I can’t help but wonder if it’s really doing the things the government expects me to do.
Sheryl BergeCEO at Lynch LLC
I’m trying to get a hold of someone in support, I’m in a lot of trouble right now and they are saying it has something to do with my books. Please get back to me right away.
Amy HahnDirector at Velocity Industries
The best part about Ready2Build is every time I pay my employees, my bank balance doesn’t go down like it used to. Looking forward to spending this extra cash when I figure out why my card is being declined.
Leland KiehnFounder of Kiehn and Sons
There are so many things I had to do with my old software that I just don’t do at all with Ready2Build. Suspicious but I can’t say I don’t love it.
Erin PowlowskiCOO at Armstrong Inc
I used to have to remit tax to the EU and with Ready2Build I somehow don’t have to do that anymore. Nervous to travel there now though.
Peter RenoldsFounder of West Inc
This is the fourth email I’ve sent to your support team. I am literally being held in jail for tax fraud. Please answer your damn emails, this is important.
Amy HahnDirector at Velocity Industries
Simple pricing, for everyone.
It doesn’t matter what size your business is, our software won’t work well for you.
Home Owner
Good for wanting to build their own home.
$900
- Send 10 quotes and invoices
- Connect up to 2 bank accounts
- Track up to 15 expenses per month
- Manual payroll support
- Export up to 3 reports
Small Builder
Building 2 homes a year
$1500
- Send 25 quotes and invoices
- Connect up to 5 bank accounts
- Track up to 50 expenses per month
- Automated payroll support
- Export up to 12 reports
- Bulk reconcile transactions
- Track in multiple currencies
Multi Home Builder
Building multi homes a month.
$3900
- Send unlimited quotes and invoices
- Connect up to 15 bank accounts
- Track up to 200 expenses per month
- Automated payroll support
- Export up to 25 reports, including TPS

Frequently asked questions
If you can’t find what you’re looking for, email our support team and if you’re lucky someone will get back to you.
Does Ready2Build handle VAT?
Well no, but if you move your company offshore you can probably ignore it.
Can I pay for my subscription via purchase order?
Absolutely, we are happy to take your money in all forms.
How do I apply for a job at Ready2Build?
We only hire our customers, so subscribe for a minimum of 6 months and then let’s talk.
What was that testimonial about tax fraud all about?
Ready2Build is just a software application, ultimately your books are your responsibility.
Ready2Build sounds horrible but why do I still feel compelled to purchase?
This is the power of excellent visual design. You just can’t resist it, no matter how poorly it actually functions.
I found other companies called Ready2Build, are you sure you can use this name?
Honestly not sure at all. We haven’t actually incorporated or anything, we just thought it sounded cool and made this website.
How do you generate reports?
You just tell us what data you need a report for, and we get our kids to create beautiful charts for you using only the finest crayons.
Can we expect more inventory features?
In life it’s really better to never expect anything at all.
I lost my password, how do I get into my account?
Send us an email and we will send you a copy of our latest password spreadsheet so you can find your information.


